|
Nueva
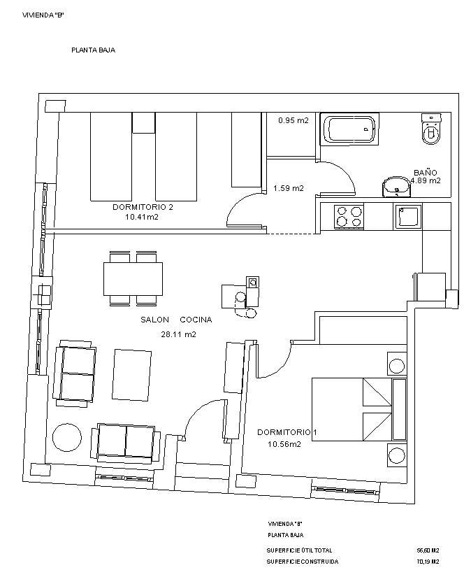
Promoción en LANUZA 
Casa del
Rey es una pequeña edificación en el centro
de Lanuza orientada hacia el pantano que lleva el mismo nombre. Consta
de seis viviendas al más estilo montañés lo que la hace perfecta
para disfrutar en ella de una vida tranquila en un paraje tan especial como es
Lanuza.
|